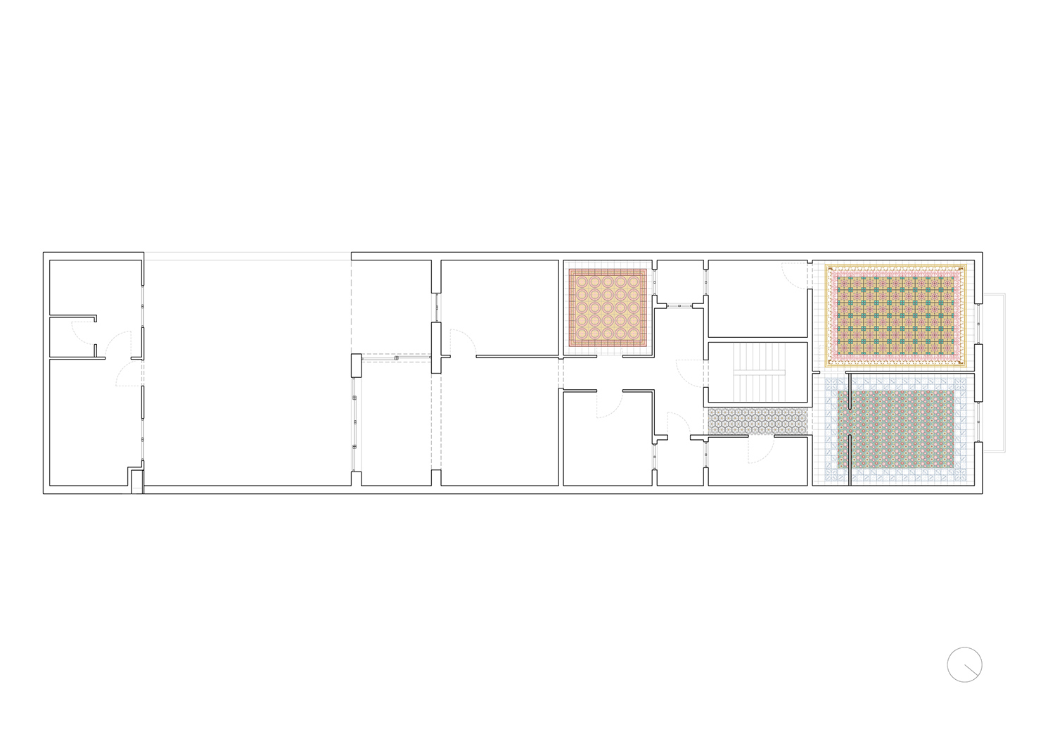
Дом расположен в плотном городском районе Грасиа, Барселона. Архитектор переформатировал историческую собственность в современное жилище, хорошо приспособленное к средиземноморскому климату.
Площадь: 185 кв. м. Дата выполнения: 2016-2017.




















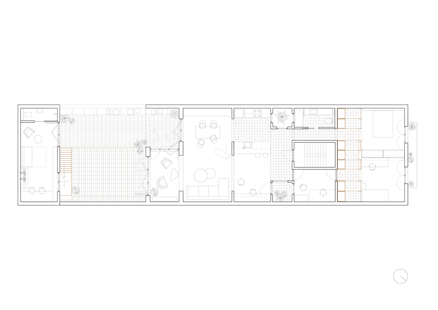
Дом расположен в плотном городском районе Грасиа, Барселона. Архитектор переформатировал историческую собственность в современное жилище, хорошо приспособленное к средиземноморскому климату.
Площадь: 185 кв. м. Дата выполнения: 2016-2017.



















