Здравствуйте! Настало время обустроить отдельное жилье для нашего старшего ребенка. Бюджет был весьма скромным, и наш «ребенок» был уверен, что без вложения миллионов рублей создать что-то стоящее невозможно. Мы с мужем решили бросить вызов этому убеждению и доказать на практике, что даже доступными средствами можно создать по-настоящему стильный и современный интерьер.
Сейчас мы постепенно дополняем квартиру мебелью и декоративными элементами.
Многие детали, например светильники, были сделаны своими руками. Из-за особенностей планировки и нехватки свободного пространства мы решили использовать раздвижные двери-купе в качестве межкомнатных — это визуально расширяет площадь. В санузел такую дверь ставить не рискнули, хотя, как показывает опыт, это вполне допустимый вариант.
Главные задачи ремонта
Перед нами стояло несколько целей. Помимо создания визуально привлекательного пространства, нам было критически важно максимально увеличить ощущение простора, выжать из каждой площади максимум удобства, но при этом — не менять планировку и не ломать несущие стены, чтобы избежать сложных согласований.

Исходная планировка квартиры

Для отделки мы использовали плитку из разных коллекций, которую удалось выгодно приобрести в остатках в магазине «Керама Марацци». Шкафы — модель «Фактум» от Икеи, купленные на распродаже.

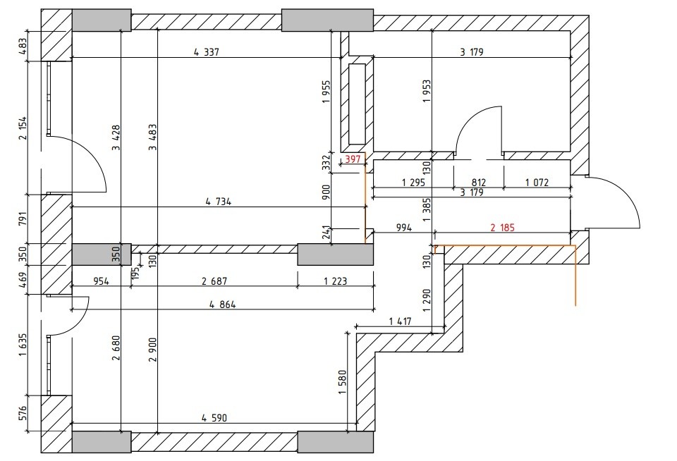
Планировка после ремонта

Столешница на кухне, к нашему удивлению, идеально совпала по цвету с выбранным кафелем.



Спальня и авторские решения
В спальне установлены светильники, которые муж сделал самостоятельно из хромированных деталей от сантехнического оборудования.


Кстати, нужен совет по выбору текстиля. Склоняюсь к оранжево-терракотовым оттенкам. Бирюзовый цвет кажется уже несколько банальным.
Для отделки стен мы использовали комбинацию обоев и ламината. Идея с ламинатом на стене вызвала у нас сомнения, но после изучения опыта на YouTube мы решились. Муж, будучи человеком основательным (и немцем по происхождению), подошел к монтажу с особым тщанием. Ламинат на стене — тот же, что и на полу, крупноформатный и без фасок.
Это очень практичное решение для зоны изголовья кровати: за ним легко ухаживать, и он не собирает пыль. По краю изголовья мы провели светодиодную подсветку. Она светит мягко, не слепит глаза и работает автономно. Очень рекомендуем этот прием!

Вид на спальню с закрытой зеркальной дверью. Пока не решили, стоит ли как-то декорировать ее обратную сторону или просто привыкнуть к такому виду.

Детали и hand-made
Еще один пример ручной работы — декоративные рейки. Это карнизы от старых кухонь «Фактум» из Икеи. Муж придумал остроумный способ их крепления. У окна мы разместили зеркало, чтобы создать эффект продолжения пространства, хотя, оглядываясь назад, понимаем, что стоило сделать его пошире для большего визуального эффекта.

Все светильники в квартире я красила самостоятельно.
Зеркальная дверь-купе. Именно чтобы скрыть ее, когда сидишь на диване, мы и сделали декоративную решетку. Изначально планировалось повесить на эту решетку на кронштейнах телевизор, а розетку спрятать за ней.
В квартире высокие потолки, но мы все равно решили установить дверь с верхним креплением, без дополнительных конструкций, которые бы «съедали» высоту. Оказалось, что заказать зеркало высотой 2,8 метра — не проблема, и стоимость почти не возрастает. Теперь мы всегда будем использовать этот прием!

Кухня и санузел
Для кухни мы рискнули выбрать черный цвет. Холодильник пока еще не купили.


Пока обходимся без духового шкафа, но место и розетка для него предусмотрены. Третий шкаф на кухне отведен под посудомоечную машину. Систему хранения мы организовали в узкие шкафы, которые изначально были навесными, но мы поставили их на пол. Из-за этого в столешнице образовалась небольшая ступенька, но для нас это не критично.

Декоративный кирпич я покрасила перламутровой акриловой краской и слегка состарила его с помощью патины. Чтобы визуально отделить прихожую, мы соорудили перегородку из тех же реек.

Дверь в ванную — модель «Волховец». Чтобы не резать плитку на полу у порога, мы компенсировали зазор металлической мозаикой нужного размера. Этот же материал использовали для кухонного фартука, чтобы поддержать единый стиль.
Стеклянная дверь в санузел очень удобна: всегда видно, не забыл ли ты выключить свет внутри.

Вид от входной двери.

На лоджии решили обойтись максимально экономичными, но аккуратными решениями. Главное — было сделать ее чистой и функциональной.
Философия интерьера и неожиданный финал
Мы — люди активные, и в интерьере нам хотелось передать ощущение движения, динамики, задать определенный ритм.
Казалось бы, можно было въезжать и наслаждаться результатом, но, как это часто бывает, жизнь внесла свои коррективы. Наш «ребенок» поступил в университет в другом городе, и переезд отменился. Сдавать такую квартиру в аренду теперь жалко.
Спасибо, что уделили время нашему рассказу! И, кстати, наш «ребенок» — девочка, просто мы привыкли так ее называть.
Оригинал материала можно посмотреть на ideas.homechart.ru